
3D Ngoại Thất Biệt Thự 2 Tầng Mái Thái
Với công trình này, các kiến trúc sư của Đức Thảo đã tư vấn cho gia chủ sử dụng gam màu trắng. Ở công trình hiện đại, chúng ta có thể sử dụng gần như bất kỳ màu sắc nào cho ngôi nhà của mình, bởi điểm đặc sắc của những công trình hiện đại là sự tập trung kết hợp giữa ánh sáng và màu sắc. Những công trình Tân cổ điển, các chi tiết như phù điêu, phào chỉ đã xuất hiện rất nhiều, màu sắc được lựa chọn nên là các màu trung tính, nhã nhặn như màu trắng tránh tình trạng cầu kỳ và rối mắt.

3D Về phần mái nhà
công trình này sử dụng hệ mái Thái với phần đỉnh mái nhọn, vát hình chữ A. Mái Thái có tác dụng chống thấm nước, hạn chế tiếng ồn khi trời mưa, phù hợp với điều kiện khí hậu ở nước ta. Bên cạnh đó, những ngôi nhà sở hữu hệ mái Thái bao giờ cũng đẹp thanh thoát và sang trọng. Hệ thống cửa của công trình từ cửa chính, cửa đi và cửa sổ đều sử dụng chất liệu nhôm hệ xingfa kết hợp với kính an toàn. Với cửa ngôi nhà này, chúng ta có thể sử dụng gỗ hoặc nhôm hệ. Nếu gỗ mang đến vẻ đẹp sang trọng thì sự góp mặt của nhôm hệ kết hợp kính lại mang đến nét thanh lịch, tạo nên độ thông thoáng nhất định.

Ở công trình này, lan can ban công sử dụng sắt mỹ thuật và con tiện bê tông. Với lợi thế về giá trị thẩm mỹ cao, 2 loại lan can ban công này trở thành sự lựa chọn hàng đầu của những công trình như biệt thự, lâu đài. Tại vị trí chân công trình, chúng tôi đã ốp gạch, tạo điểm nhấn và bảo vệ chân công trình tránh khỏi các tác động của thời tiết như: nắng, mưa,và tránh sự tấn công của côn trùng. Để giúp ngôi nhà trở nên mềm mại và nhiều màu sắc hơn, chúng tôi đã thiết kế những bồn hoa ôm lấy chân tường. Đây sẽ là nơi cả gia đình sáng tạo theo sở thích của mình. Di chuyển mắt ra xa hơn, chúng ta thấy được cổng và tường rào của ngôi nhà. Cánh cổng cũng được làm sắt mỹ thuật, mái cổng được tạo hình dốc và lợp ngói đồng màu sắc với mái nhà. Tường tào được làm từ bê tông kết hợp với sắt mỹ thuật, chú trọng tạo hình độc đáo, đáp ứng cả về tính thẩm mỹ và sự chắc chắn. Công trình này có kích thước xây dựng là 11,8 x 19,2m. Diện tích sử dụng của công trình khoảng 323m2 – một diện tích rất lớn.

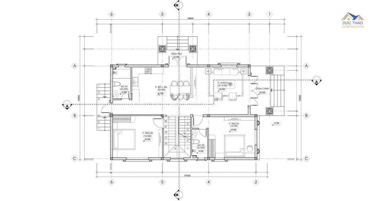
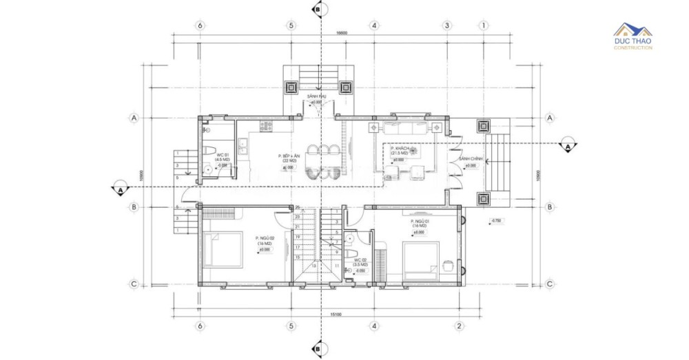
Mặt bằng định vị công trình
Không gian đầu tiên là phòng khách có diện tích 33,5m2. Tiến vào bên trong là khu vực phòng bếp kết hợp với phòng ăn, có diện tích 42m2. Tầng 1 có 2 phòng ngủ, phòng ngủ số 1 có diện tích là 24m2 và 1 nhà vệ sinh chung, phòng ngủ số 2 có diện tích 18,3m2.
Mặt bằng bố trí công năng tầng 1
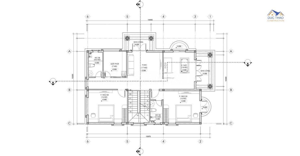
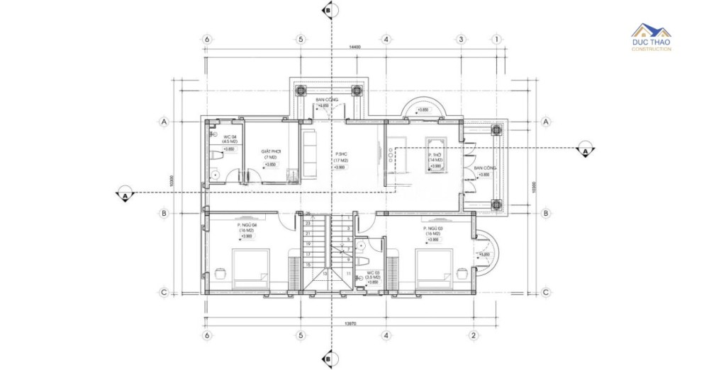
Tiến lên tầng 2, không gian đầu tiên mà chúng tôi muốn chia sẻ là khu vực phòng thờ, có diện tích 18m2. Di chuyển vào trong là phòng sinh hoạt chung, căn phòng này có diện tích 24m2. Tầng này có 3 phòng ngủ. Phòng ngủ số 3 có diện tích khoảng 18m2. Phòng ngủ số 4 có diện tích 18,3m2. Riêng phòng ngủ số 5 có diện tích 24m2, bên trong phòng ngủ có 1 nhà vệ sinh khép kín.Mặt bằng bố trí công năng tầng 2

Và thông tin bài viết trên hy vọng là mẫu nhà quý khách hàng yêu thích nếu cần hổ trợ tư vấn cụ thể hơn về mẫu nhà trên bạn hãy liên hệ cho chúng tôi qua hotlite .09.09.77.2222 . rất vui được tư vấn cho ngôi nhà tương lai của bạn .
