I. Tổng Quan Về Mẫu Nhà Phố 4 Tầng Hiện Đại Tại Long An
Được kiến tạo bởi đội ngũ kiến trúc sư và kỹ sư giàu kinh nghiệm của Công ty Thiết kế và Xây dựng Đức Thảo, công trình nhà phố 4 tầng này là một biểu tượng của sự sang trọng và tiện nghi giữa lòng Long An. Tọa lạc trên một lô đất có mặt tiền lý tưởng 5m và chiều sâu 16m, ngôi nhà là minh chứng cho khả năng tối ưu hóa không gian một cách khéo léo, biến những hạn chế về diện tích thành lợi thế. Kích thước này, vốn là đặc trưng của các lô đất nhà phố đô thị, đòi hỏi sự tính toán tỉ mỉ để mỗi mét vuông đều phát huy tối đa công năng.
Ngôi nhà được thiết kế theo phong cách hiện đại, đề cao sự tối giản nhưng không kém phần tinh tế và sang trọng. Thay vì những chi tiết rườm rà, kiến trúc sư đã tập trung vào các đường nét mạch lạc, dứt khoát, kết hợp hài hòa với những đường bo cong mềm mại ở các góc cạnh và ban công. Yếu tố "bo cong" này không chỉ tạo điểm nhấn độc đáo, phá vỡ sự cứng nhắc của hình khối mà còn mang đến cảm giác uyển chuyển, thanh thoát và thân thiện hơn cho tổng thể ngôi nhà.
Tone màu trắng chủ đạo bao phủ toàn bộ kiến trúc, từ mặt tiền đến không gian nội thất, không chỉ mang lại vẻ đẹp thanh lịch, tinh khôi mà còn tạo hiệu ứng thị giác giúp không gian trở nên rộng rãi và thoáng đãng hơn. Màu trắng cũng là gam màu dễ dàng kết hợp với các yếu tố trang trí khác, từ vật liệu tự nhiên như gỗ, đá đến các chi tiết nội thất màu sắc, tạo nên một tổng thể hài hòa và hiện đại.
Một điểm nhấn nổi bật không thể không nhắc đến là việc mỗi tầng đều được trang bị ban công. Những ban công này không chỉ là chi tiết kiến trúc làm đẹp cho mặt tiền mà còn là "lá phổi" của ngôi nhà, giúp tận dụng tối đa nguồn ánh sáng tự nhiên và luồng gió trời, mang lại không khí trong lành và cảm giác thư thái cho các thành viên. Đây cũng là không gian lý tưởng để gia chủ có thể trồng cây xanh, thưởng thức ly cà phê buổi sáng hoặc đơn giản là ngắm nhìn khung cảnh xung quanh sau những giờ làm việc căng thẳng. Tất cả những yếu tố này cùng nhau tạo nên một không gian sống đẳng cấp, tiện nghi và đầy cảm hứng tại Long An.
.jpg)
.jpg)
II. Bố Trí Công Năng Tối Ưu Từng Tầng
Với diện tích mặt bằng 5x16m, một kích thước khá phổ biến trong quy hoạch đô thị, đội ngũ kiến trúc sư của Công ty Đức Thảo đã thể hiện sự tinh tế và am hiểu sâu sắc trong việc bố trí công năng. Mỗi tầng đều được quy hoạch một cách tỉ mỉ, khoa học, không chỉ đảm bảo sự tiện nghi tối đa cho mục đích sinh hoạt gia đình mà còn mở ra tiềm năng kinh doanh vượt trội, mang lại giá trị sử dụng đa dạng cho chủ sở hữu.
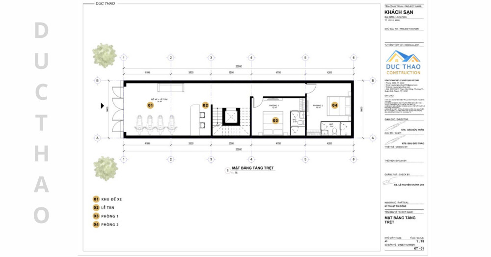
Bắt đầu từ tầng 1, không gian được thiết kế vô cùng linh hoạt và đa dụng. Ngay từ khi bước vào, bạn sẽ tìm thấy một gara xe rộng rãi, đủ sức chứa cho cả ô tô lẫn xe máy, đảm bảo an toàn và sự thuận tiện tối đa cho việc di chuyển hàng ngày. Tiếp đến, hai phòng ngủ được bố trí khéo léo, mang đến sự riêng tư và thoải mái. Gia đình bạn có thể sử dụng chúng làm không gian sinh hoạt riêng tư, hoặc dễ dàng chuyển đổi thành phòng khách ấm cúng, phòng làm việc yên tĩnh, tùy thuộc vào nhu cầu và sở thích. Đặc biệt, sự xuất hiện của một quầy lễ tân ngay tại tầng trệt là một điểm nhấn chiến lược. Điều này không chỉ tạo ấn tượng chuyên nghiệp ngay từ cái nhìn đầu tiên mà còn cực kỳ lý tưởng nếu bạn có ý định tận dụng tầng trệt cho mục đích kinh doanh, đảm bảo sự đón tiếp khách hàng diễn ra thuận lợi và hiệu quả.
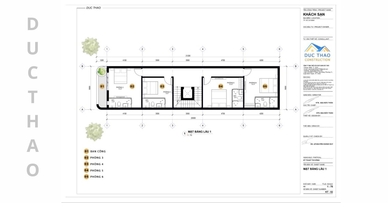
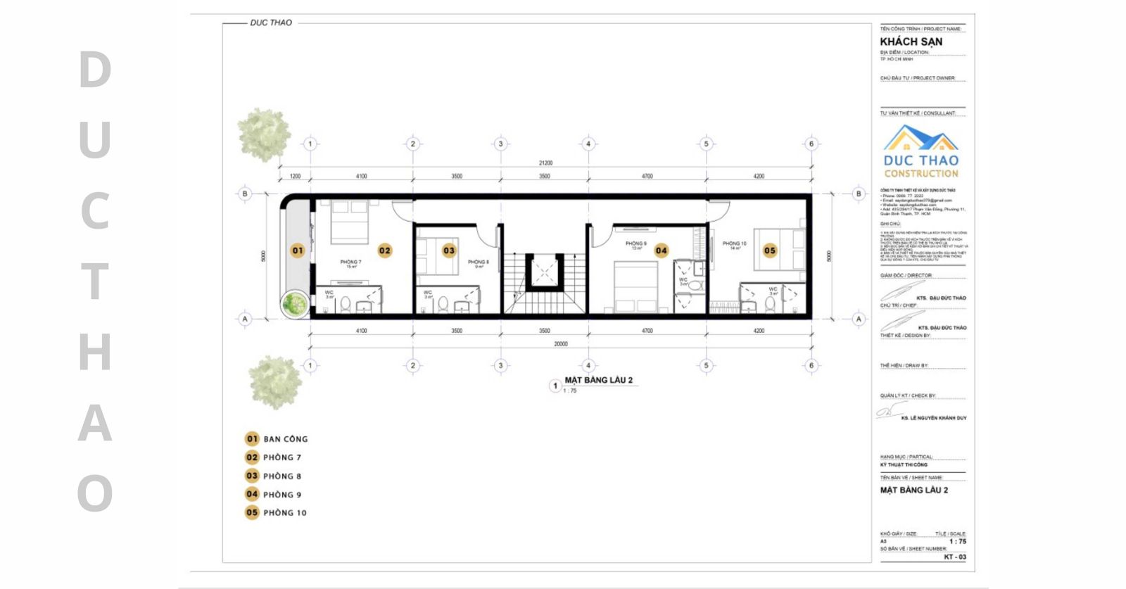
Lên đến tầng 2 và tầng 3, mục tiêu tối đa hóa nguồn thu nhập từ việc cho thuê được đặt lên hàng đầu. Mỗi tầng được bố trí một cách thông minh với 4 phòng cho thuê, và điều đáng chú ý là mỗi phòng đều sở hữu WC khép kín riêng biệt. Thiết kế này không chỉ đảm bảo sự riêng tư tuyệt đối mà còn mang lại tiện nghi tối đa cho người thuê, nâng cao giá trị và sức hấp dẫn của không gian cho thuê. Đây là giải pháp lý tưởng cho những khu vực có nhu cầu thuê nhà cao như gần các khu công nghiệp, trường học hay các khu dân cư sầm uất, giúp chủ nhà thu về nguồn lợi nhuận ổn định và bền vững.
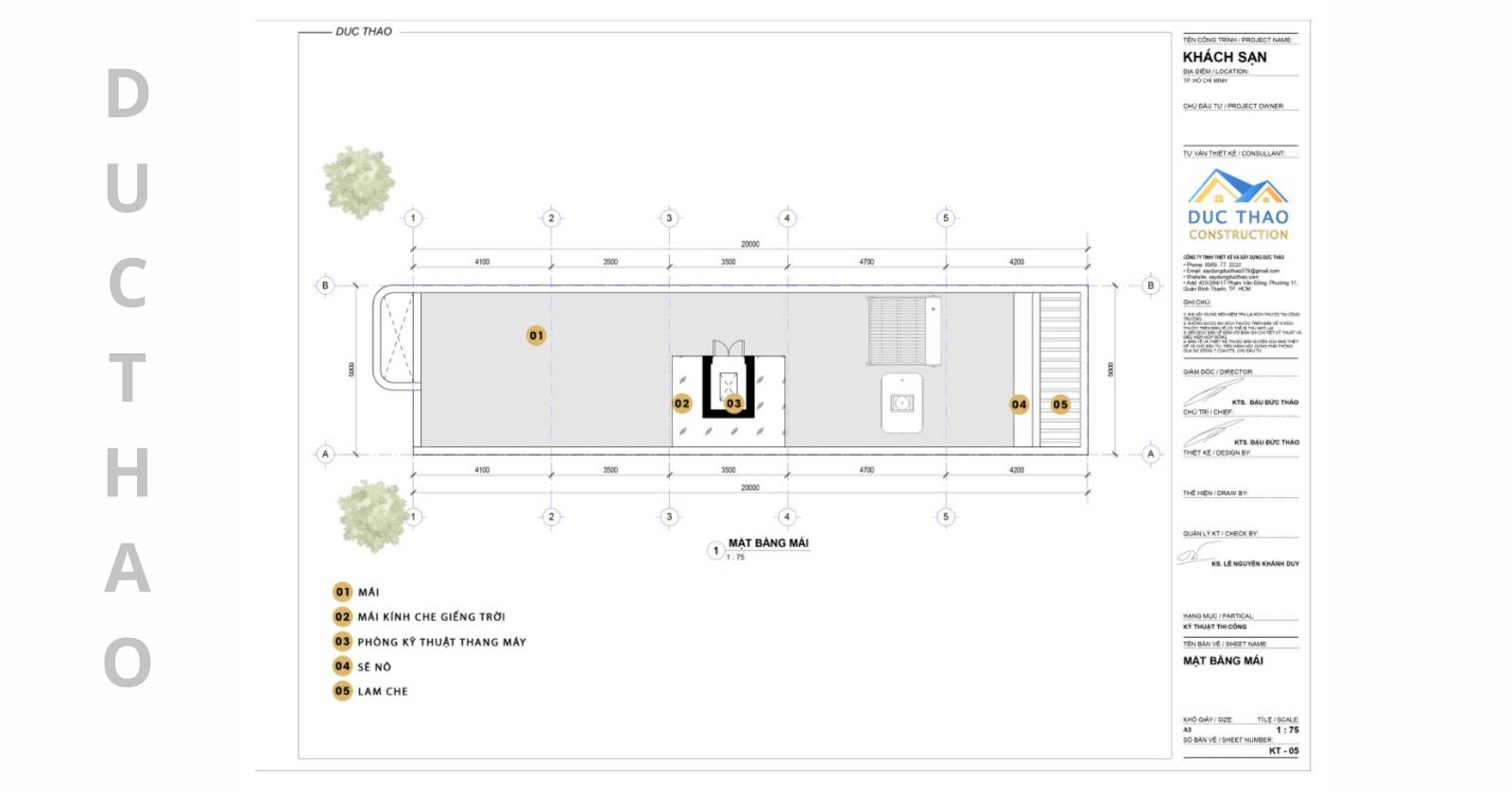
Cuối cùng, tầng 4 tiếp tục phát huy hiệu quả của mô hình kinh doanh cho thuê với 2 phòng ngủ cùng 2 WC khép kín tiện nghi. Tuy nhiên, điểm nhấn đặc biệt của tầng này chính là sân thượng phía sau. Đây là một không gian mở đầy tiềm năng, không chỉ là nơi lý tưởng để phơi phóng quần áo mà còn có thể biến thành một khu vườn nhỏ với những chậu cây xanh mát, hay một góc chill lý tưởng để bạn tận hưởng không khí trong lành. Hơn thế nữa, sân thượng còn là địa điểm hoàn hảo để tổ chức những buổi tiệc nhỏ ấm cúng cùng gia đình và bạn bè, hay đơn giản chỉ là nơi bạn tìm về để thư giãn, ngắm cảnh và xua tan mọi mệt mỏi sau một ngày dài. Tất cả những yếu tố này hòa quyện, tạo nên một tổng thể công năng hoàn hảo, đáp ứng mọi kỳ vọng về một không gian sống hiện đại và kinh doanh hiệu quả.
.jpg)
.jpg)
.jpg)
III. Điểm Nhấn Thiết Kế Sang Trọng Và Hiện Đại
Ngoài công năng vượt trội, mẫu nhà phố này còn gây ấn tượng mạnh bởi những điểm nhấn thiết kế độc đáo:
- Tone màu trắng chủ đạo: Mang đến vẻ đẹp thanh lịch, tinh khôi, tạo cảm giác không gian rộng rãi và thoáng đãng hơn. Đây là màu sắc dễ dàng kết hợp với nội thất và ngoại thất, mang lại sự linh hoạt trong trang trí.
- Thiết kế hiện đại: Đường nét kiến trúc tối giản, mạnh mẽ, không rườm rà nhưng vẫn toát lên vẻ đẳng cấp. Sự kết hợp giữa vật liệu hiện đại như kính, thép và bê tông tạo nên một tổng thể hài hòa và bền vững.
- Ban công ở mỗi tầng: Không chỉ là điểm nhấn kiến trúc, ban công còn giúp lấy sáng tự nhiên, tăng cường lưu thông không khí, mang lại không gian xanh mát và là nơi lý tưởng để thư giãn, ngắm nhìn phố phường.
- Tối ưu hóa ánh sáng và thông gió: Các ô cửa sổ lớn, ban công và giếng trời (nếu có) được tính toán kỹ lưỡng để đảm bảo ngôi nhà luôn tràn ngập ánh sáng và thông thoáng, giảm thiểu sự phụ thuộc vào đèn điện và điều hòa không khí.
.jpg)
.jpg)
.jpg)
.jpg)
.jpg)
.jpg)
IV. Lợi Ích Vượt Trội Khi Lựa Chọn Mẫu Nhà Này
Mẫu nhà phố 4 tầng của Đức Thảo không chỉ là một công trình kiến trúc mà còn là một giải pháp sống và đầu tư thông minh:
Đa năng, linh hoạt: Vừa là không gian sống tiện nghi cho gia đình, vừa có khả năng tạo ra nguồn thu nhập thụ động đáng kể từ việc cho thuê phòng, đặc biệt phù hợp với các gia đình có nhu cầu kinh doanh.
Thiết kế tối ưu, tiết kiệm diện tích: Với mặt tiền 5m, việc bố trí công năng hợp lý giúp tận dụng tối đa từng mét vuông, mang lại hiệu quả sử dụng cao.
Sang trọng, bền vững: Vật liệu và kỹ thuật xây dựng hiện đại đảm bảo ngôi nhà không chỉ đẹp mà còn bền vững theo thời gian.
Nâng cao chất lượng cuộc sống: Không gian sống thoải mái, tiện nghi với đầy đủ các phòng chức năng, ban công thoáng đãng, mang lại trải nghiệm sống đẳng cấp.
V. Lời Kết
Mẫu nhà phố 4 tầng sang trọng, hiện đại với mặt tiền 5m, chiều sâu 16m tại Long An do Công ty Thiết kế và Xây dựng Đức Thảo thực hiện là một minh chứng cho sự kết hợp hoàn hảo giữa thẩm mỹ và công năng. Đây không chỉ là một ngôi nhà để ở mà còn là một tài sản có giá trị đầu tư cao, mang lại nguồn thu nhập ổn định và bền vững.
Hãy để Công ty Thiết kế và Xây dựng Đức Thảo biến giấc mơ về ngôi nhà lý tưởng của bạn thành hiện thực!
Liên hệ ngay với chúng tôi để được tư vấn chi tiết và nhận báo giá ưu đãi nhất cho công trình của bạn!
Hotline/Zalo: 0909 77 2222
Website: https://xaydungducthao.com/
Địa chỉ văn phòng: 435/284/17 Phạm Văn Đồng, P.11, Quận Bình Thạnh, TP.HCM
Chúng tôi luôn sẵn sàng đồng hành cùng bạn từ bản vẽ đầu tiên cho đến ngày hoàn công.