
Mẫu biệt thự 2 tầng mái Thái mang nét đẹp hài hoà
Mẫu biệt thự nhẹ nhàng từ cách kết hợp các chi tiết với nhau. Sự sang trọng, tinh tế của kiến trúc tân cổ được thể qua từng đường nét và hình khối vững chắc. Thước cột, gờ tường được bố trí cân đối để tạo nên sự thống nhất cho căn biệt thự 2 tầng mái nhật đầy lịch lãm này .
Chi tiết về phào chỉ của căn biệt thự 2 tầng
Cột trụ vuông vắn nâng đỡ sảnh chính và sảnh phụ, cột hình khối vuông tạo sự chắc chắn và ở tầng 2 được sử dụng những thước cột tròn, mang lại sự mềm mại cho công trình.Ngoài ra, ban công là sắt hoa nghệ thuật màu vàng đồng sang trọng, mềm mại, mang đến sự lôi cuốn, quý phái cho ngôi nhà 2 tầng mái nhật này.

Phần 3D phía sau biệt thự tân cổ điển
Nhìn vào phối cảnh mặt sau của mẫu nhà mái nhật 2 tầng này ta thấy được rõ ràng màu sơn trắng chủ đạo cùng với đá ốp chân tường tối màu làm cho căn nhà thêm phần cao và gọn gàng hơn đồng thời ốp chân tường giúp tránh bám bẩn ẩm mốc.
Phần mái của biệt thự 2 tầng mái nhật tân cổ điển
Đối với một công trình thì phần mái đóng vai trò vô cùng quan trọng, bởi đây vừa là lớp đóng vai trò bảo vệ cho khối nhà bên dưới không bị ảnh hưởng bởi mưa, nắng, kết cấu mái nhật đảm bảo chống nóng và thoát nước tốt cho công trình được bền bỉ với thời gian.

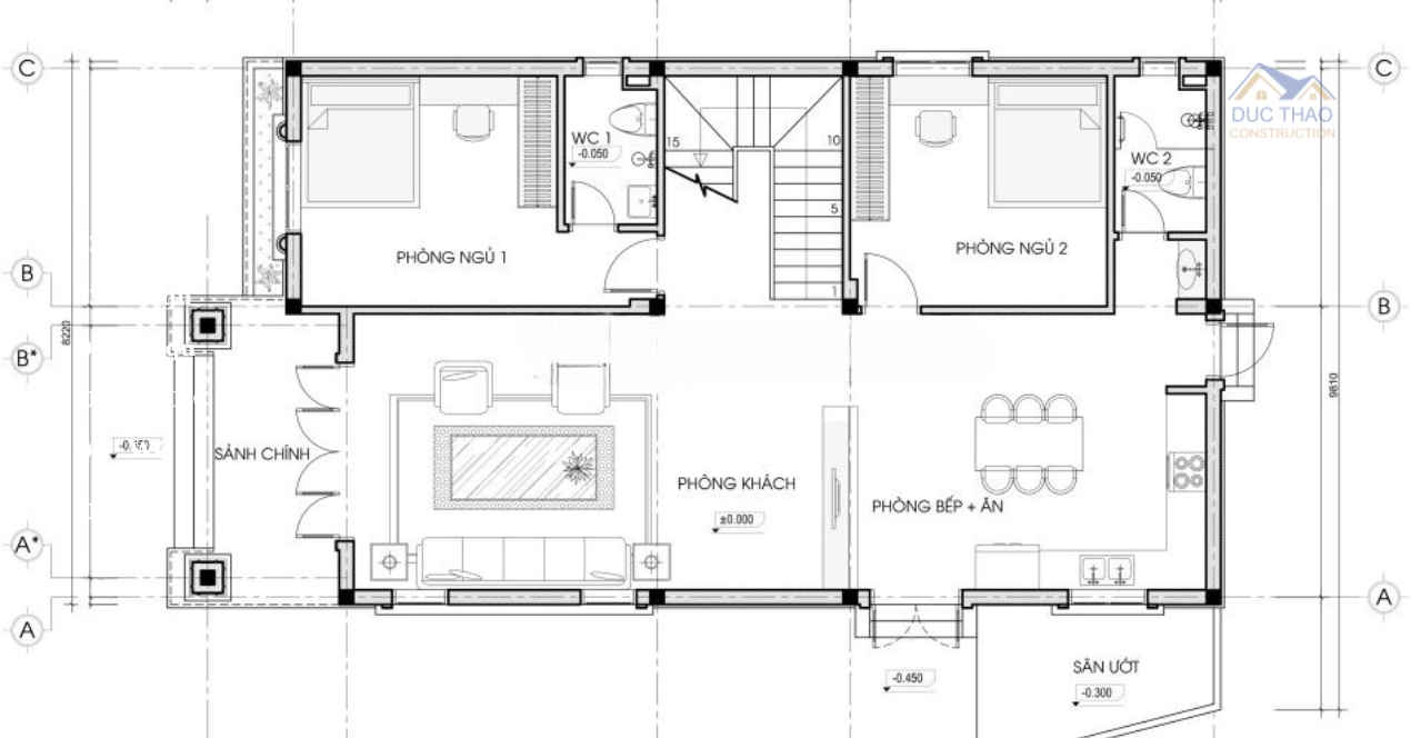
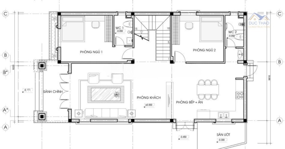
Nội Thất Của biệt thự 2 tầng mái nhật
Tận dụng được diện tích để thiết kế 2 không gian sảnh rộng rãi nên gia chủ có thể đi qua phòng khách qua 2 lối cửa chính và cửa phụ. Phòng thờ được đặt ở tầng 1, được thiết kế không gian rất riêng tư.
Khu vực bếp và phòng ngủ của biệt thự tân cổ điển mái nhật
Tiếp theo là đến phòng bếp ăn, không gian bêp được bố trí đầy đủ dùng cần thiết cho người nội trợ. Tầng 1 đươc đặt 2 phòng ngủ cạnh nhau, trong đó phòng ngủ 02 có nhà vệ sinh khép kín.Phòng ngủ, bếp ăn đều được hướng đến quy chuẩn đảm bảo phù hợp về chiều cao, ánh sáng cùng độ thông thoáng.
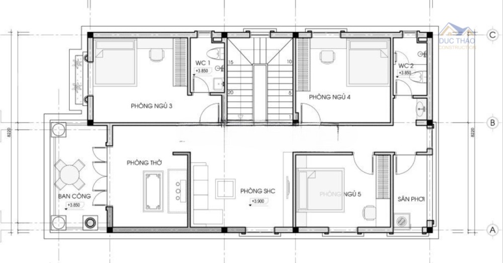
3D Tầng 2 Của Căn Biệt Thự 2 tầng mái nhật
Di chuyển lên tầng 2, phòng sinh hoạt chung được bố trí diện tích vừa đủ. Diện tích còn lại là để đặt 4 phòng ngủ liền kề xung quanh ở tầng 2. Vị trí ở cuối nhà là đặt phòng giặt phơi và nhà vệ sinh chung của cả gia đình.

Ngoài việc thiết kế công năng thật khoa học, hợp lý, các kiến trúc sư đức thảo đã kết hợp với chuyên gia phong thuỷ lên phương án yếu tố phong thủy từ những chi tiết nhỏ như kích thước, hướng, vị trí của cửa ra vào cũng được tính toán chuẩn theo thước lỗ ban, hợp mệnh và tuổi gia chủ. Và thông tin bài viết trên hy vòng là mẫu hà quý khách hàng yêu thích nếu cần hổ trợ tư vấn cụ thể hơn về mẫu biệt thự 2 tầng mái nhật trên bạn hãy liên hệ cho chúng tôi qua hotlite .09.09.77.2222 . rất vui được tư vấn cho ngôi nhà tương lai của bạn chúc các bạn một ngày vui vẽ xin chào hẹn gặp lại !