
Mãi Thái Sang Trọng Đậm Chất Địa Trung Hải Tại Đồng Nai
Việc thiết kế một biệt thự sân vườn mái Thái độc đáo tại Đồng Nai không chỉ coi trọng vẻ đẹp kiến trúc mà còn hòa quyện với thiên nhiên và độc đáo về phong cách. Nằm trong huyện cùng tên, Đồng Nai không chỉ nổi tiếng với vẻ đẹp thiên nhiên hùng vĩ mà còn là điểm đến lý tưởng cho những ai yêu thích sự yên bình và tĩnh lặng. Một biệt thự sân vườn mái Thái tại Đồng Nai mang đậm chất địa Trung Hải sẽ là điểm nhấn thu hút mọi ánh nhìn và là nơi nghỉ dưỡng tuyệt vời cho gia chủ.

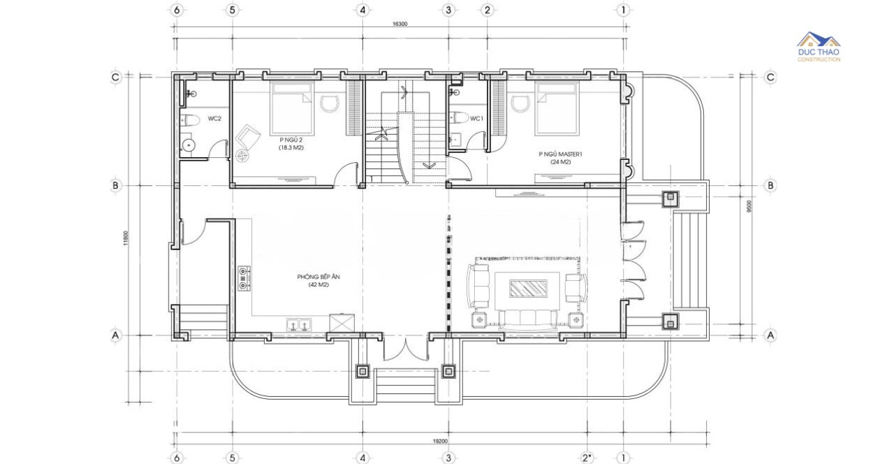
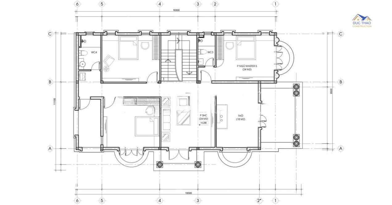
Thiết Kế Nội Thất Sang Trọng và Tiện Nghi
Mẫu biệt thự này chắc chắn sẽ đánh bại mọi dự án nội thất khác ở Đồng Nai. Với sự kết hợp hài hòa giữa phần cứng và mềm, nhà được thiết kế với sự chú trọng đặc biệt vào việc sử dụng các loại gỗ quý cao cấp, kết hợp với nội thất hiện đại để tạo nên sự sang trọng và tiện nghi cho không gian sống. Mỗi chi tiết như cửa sổ, cầu thang, hoa văn và đèn trang trí đều được lựa chọn cẩn thận để tạo nên không gian sống thanh lịch và ấm cúng.

Sân Vườn Đẳng Cấp
Nhấn mạnh vào việc tận dụng không gian xung quanh, biệt thự sân vườn mái Thái tại Đồng Nai mang đến một khu vườn tiểu cảnh xanh mướt, tạo nên không gian sống gần gũi với thiên nhiên. Vườn được chăm sóc và bài trí một cách tinh tế, từ những bức tường rêu phong cách cổ điển, đến những khu vực trồng cây xanh tạo điểm nhấn cho không gian ngoại thất của ngôi nhà.

Mái Thái Độc Đáo
Với kiến trúc mái vòm truyền thống của Thái Lan, mái nhà được thiết kế với những dải gỗ cong và tròn tạo cảm giác thoải mái và gần gũi với thiên nhiên. Sự tinh tế và duyên dáng trong từng chi tiết của mái nhà mái Thái tạo nên điểm thu hút và độc đáo cho ngôi biệt thự.


Với sự kết hợp tinh tế giữa kiến trúc sang trọng, nội thất tiện nghi và sân vườn đẳng cấp, biệt thự sân vườn mái Thái tại Đồng Nai thực sự là biểu tượng của sự hoàn hảo và đẳng cấp Và thông tin bài viết trên hy vọng là mẫu nhà quý khách hàng yêu thích nếu cần hổ trợ tư vấn cụ thể hơn về mẫu nhà trên bạn hãy liên hệ cho chúng tôi qua hotlite .09.09.77.2222 . rất vui được tư vấn cho ngôi nhà tương lai của bạn .